ProjectS

Skagit 911 Modular Office

Project Details

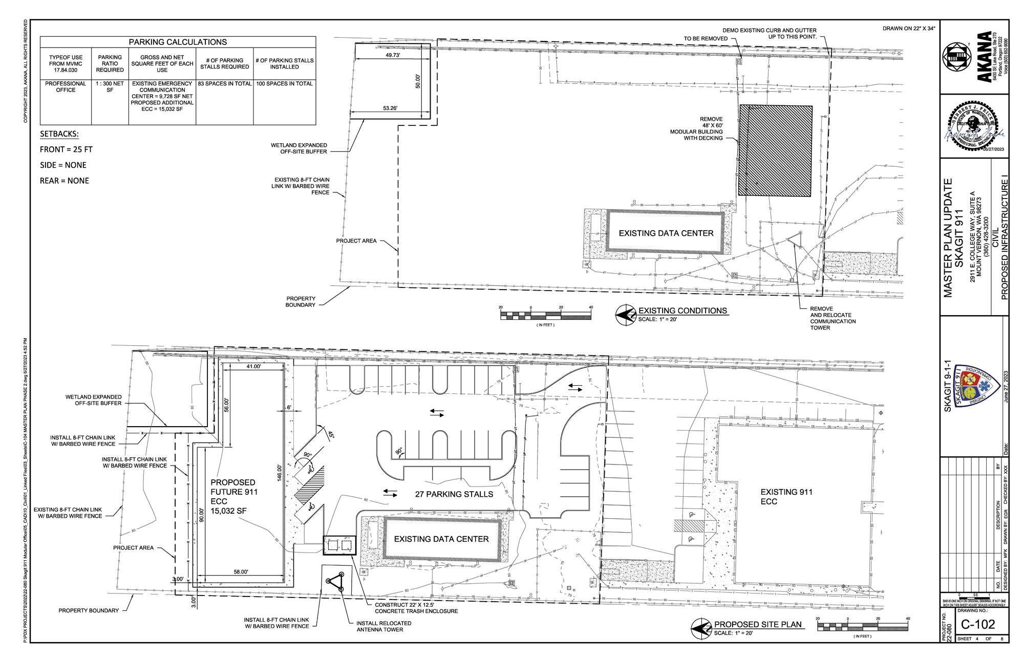
Akana partnered with Skagit 9-1-1, an interlocal non-profit corporation in Washington State, to provide professional engineering services for the replacement of an existing 1,680-square-foot modular building with a new 2,880-square-foot modular building. The purpose of this project was to create additional space for employees and improve functionality at the Emergency Communication Center (ECC). Akana’s scope included generating a site plan, utility layout, grading plan, and construction administration, as well as preliminary architectural design for the new modular building.

During the permitting process, the City of Mount Vernon required an update to the property’s expired Master Plan, resulting in a two-phase approach: Phase 1 includes replacing the existing modular building, while Phase 2 will implement the Master Plan for a future 15,000-square-foot, two-story ECC when funding becomes available. The new ECC will provide expanded office space, a training room, dispatch area, lockers and bathrooms, a tech room, and a cold room—supporting increased capacity and job opportunities for the community.

The Master Plan design allows flexibility for future growth. If Skagit 9-1-1 acquires adjacent property, the plan may be revised to accommodate a larger building footprint and improved parking and access configurations. Through proactive planning and collaboration, Akana is helping Skagit 9-1-1 achieve its long-term vision for a modern, efficient emergency communications facility.

Gallery
Project Data
Location: Mount Vernon, WA
Client Type: Commercial (Users)
Market Sector: Municipal